一、应用及特点
4-72、4-79系列离心式通风机,其效率和比A声级均达到或优于机械工业部制定的A级标准。
4-72、4-79系列离心式通风机作一般通风换气用,输送空气或其它不易燃易爆、屋腐蚀性的气体,气体内无粘性物质,所含的尘土及硬物质颗粒物不大于150mg/m3,温度不超过80℃。
注:F4-72/79为防腐性离心风机,用于输送有腐蚀性的气体,用玻璃钢或钢质多遍防腐漆,不锈钢等为材质制作。
B4-72/79为防爆型离心风机,用于输送易燃易爆气体,电机配用隔爆电机,防爆要求较低的采用钢制叶轮,防爆要求较高的实用铸镀叶轮。
FB4-72/79为防腐防爆型离心风机,用于输送有腐蚀性且易燃易爆的气体。
风机分左旋和右旋两种型式,从电机(皮带轮)侧正视,叶轮按顺时针方向旋转为右旋,逆时针旋转为左旋。A式为电机直联传动
B、C、E式为皮带传动,D、F式为联轴器传动。
4-72、4-79型离心风机的风口位置示意图
二、风机型式及传动方式(亦适用于9-19、9-26、c6-48及其它离心风机)
| 4-72型性能参数表 |
4-79型性能参数表 |
机号 |
转速
(rpm) |
风量
(m3/h) |
全压
(Pa) |
功率
(kW) |
重量 (Kg) |
2.8A |
2900 |
1131
1480
1828
2177
2356 |
994
933
835
702
606 |
1.1 |
53 |
1450 |
565
740
914
1088
1178 |
248
233
208
175
151 |
0.37 |
50 |
3.2A |
2900 |
1688
2209
2729
3250
3517 |
1300
1220
1091
918
792 |
1.5 |
69 |
1450 |
884
1104
1365
1625
1758 |
324
304
272
229
198 |
0.55 |
69 |
3.5A |
2900 |
2664
3405
4146
4887
5268 |
1578
1481
1343
1144
989 |
2.2 |
82 |
1450 |
1332
1706
2073
2444
2634 |
393
369
335
285
247 |
0.75 |
79 |
4A |
2900 |
4012
4973
5962
6924
7419 |
2014
1915
1723
1459
1320 |
5.5 |
145 |
1450 |
2006
2487
2981
3462
3709 |
501
476
429
363
329 |
1.1 |
103 |
4.5A |
2900 |
5712
7081
8489
9859
10562 |
2554
2428
2184
1849
1673 |
7.5 |
269 |
1450 |
2856
3540
4245
4929
5281 |
634
603
543
460
416 |
1.1 |
121 |
|
机号 |
转速
(rpm) |
风量
(m3/h) |
全压
(Pa) |
功率
(kW) |
重量 (Kg) |
3A |
2900 |
1970
2430
2900
3480
3830 |
1196
1157
1068
910
725 |
1.5 |
57 |
1450 |
990
1220
1450
1740
1910 |
304
284
265
225
176 |
0.55 |
58 |
3.5A |
2900 |
3120
3860
4600
5520
6070 |
1627
1568
1460
1205
980 |
3 |
69 |
1450 |
1560
1930
2300
2760
3040 |
412
392
363
304
245 |
1.1 |
69 |
4A |
2900 |
4670
5760
6860
8240
9080 |
2316
2048
1901
1578
1274 |
5.5 |
93 |
1450 |
2330
2880
3430
4120
4540 |
529
510
480
392
323 |
1.1 |
82 |
4.5A |
2900 |
6640
8200
9790
11720
12920 |
2696
2598
2412
2000
1618 |
11 |
96 |
1450 |
3320
4110
4890
5860
6450 |
676
647
598
500
402 |
1.5 |
100 |
5A |
2900 |
9100
11250
13410
16100
17720 |
3334
3216
2981
2471
2000 |
15 |
125 |
1450 |
4560
5630
6710
8050
8860 |
833
804
745
617
500 |
2.2 |
125 |
|
| 4-72型性能参数表-续表 |
4-79型性能参数表-续表 |
机号 |
转速
(rpm) |
风量
(m3/h) |
全压
(Pa) |
功率
(kW) |
重量 (Kg) |
5A |
2900 |
7728
9928
12128
14328
15455 |
3187
3074
2792
2335
2019 |
11 |
234 |
1450 |
3864
4964
6064
7164
7728 |
790
762
693
580
502 |
2.2 |
151 |
6A |
1450 |
6677
8578
10476
12379
13353 |
1139
1099
999
836
724 |
4 |
187 |
960 |
4420
5679
6938
8196
8841 |
498
481
437
366
317 |
1.5 |
177 |
6C (E) |
1800 |
8288
10648
13008
15367
16576 |
1760
1697
1543
1291
1116 |
7.5 |
335 |
1600 |
7667
9465
11562
12637
14734 |
1389
1339
1217
1019
881 |
5.5 |
320 |
1250 |
5756
7395
9033
10672
11511 |
846
816
742
621
537 |
3 |
290 |
1120 |
5157
6626
8094
9562
10134 |
679
655
595
498
431 |
2.2 |
285 |
1000 |
4605
5916
7227
8538
9209 |
541
522
474
397
344 |
2.2 |
285 |
|
机号 |
转速
(rpm) |
风量
(m3/h) |
全压
(Pa) |
功率
(kW) |
重量 (Kg) |
6A |
1450 |
4890
9740
11600
13920
15320 |
1196
1157
1068
892
706 |
5.5 |
160 |
960 |
5230
6420
7680
9220
10100 |
529
509
470
402
313 |
1.5 |
137 |
7C (E) |
1800 |
17400
20100
22550
25050
27600 |
2510
2360
2210
2060
1910 |
22 |
534 |
1600 |
15460
17720
19980
22240
24500 |
1980
1860
1740
1620
1500 |
15 |
513 |
1250 |
10820
13340
15850
19160
20850 |
1206
1167
1078
902
715 |
7.5 |
458 |
1120 |
9650
11950
14200
17200
18800 |
970
931
863
725
549 |
5.5 |
433 |
1000 |
8650
10660
12700
15300
16800 |
774
745
685
578
460 |
4 |
428 |
900 |
7780
9600
11400
13800
15100 |
627
598
558
470
372 |
3 |
424 |
800 |
6920
8400
10160
12240
12440 |
500
470
441
372
294 |
2.2 |
417 |
|
| 4-72型性能参数表-续表 |
4-79型性能参数表-续表 |
机号 |
转速
(rpm) |
风量
(m3/h) |
全压
(Pa) |
功率
(kW) |
重量 (Kg) |
7C (E) |
1800 |
14660
16750
18930
20860
22263 |
2478
2348
2157
1968
1754 |
15 |
534 |
1600 |
13032
15115
16340
17850
19790 |
1958
1850
1688
1530
1385 |
11 |
513 |
1250 |
10180
11520
12800
14140
15460 |
1195
1102
1004
926
846 |
5.5 |
458 |
1000 |
8145
9200
10255
11350
12368 |
765
710
650
600
541 |
3 |
428 |
800 |
6519
7360
8200
9040
9895 |
490
458
420
380
346 |
1.5 |
417 |
8C (E) |
1600 |
19450
21920
24430
26980
29540 |
2560
2390
2185
2015
1810 |
22 |
627 |
1250 |
15200
17170
19140
21110
23080 |
1560
1445
1330
1215
1100 |
11 |
560 |
1120 |
13620
15370
17130
18890
20680 |
1255
1160
1070
975
888 |
7.5 |
518 |
1000 |
12160
13850
15280
16830
18470 |
1000
945
870
790
705 |
5.5 |
505 |
900 |
10950
12390
13860
15130
16620 |
810
760
695
630
575 |
4 |
480 |
|
机号 |
转速
(rpm) |
风量
(m3/h) |
全压
(Pa) |
功率
(kW) |
重量 (Kg) |
8C (E) |
1600 |
21500
26500
29200
34200
41700 |
2490
2422
2235
2177
1480 |
30 |
627 |
1270 |
17100
21050
25100
30200
33100 |
1569
1529
1412
1176
931 |
15 |
560 |
1120 |
15050
18550
22100
26700
29200 |
1225
1186
1098
921
725 |
11 |
518 |
1000 |
13450
16550
19750
23800
26050 |
970
951
872
735
578 |
7.5 |
505 |
900 |
12100
14900
17800
21400
23500 |
784
764
706
598
470 |
5.5 |
480 |
800 |
10760
13250
15800
19050
20850 |
617
608
558
470
353 |
4 |
475 |
710 |
9520
11750
14030
16900
18800 |
490
465
441
372
294 |
3 |
471 |
/ |
/ |
/ |
/ |
/ |
/ |
|
机号 |
转速
(rpm) |
风量
(m3/h) |
全压
(Pa) |
功率
(kW) |
重量 (Kg) |
10C (E) |
1300 |
30880
34880
38880
42880
46880 |
2640
2450
2260
2070
1880 |
37 |
1100 |
1170 |
27780
31380
34980
38580
42180 |
2140
1985
1830
1670
1510 |
30 |
1090 |
1040 |
24700
27900
31100
34300
37500 |
1690
1570
1450
1330
1210 |
18.5 |
1000 |
940 |
22310
25210
28110
31010
33910 |
1380
1280
1180
1080
980 |
15 |
965 |
830 |
19710
22265
24820
27375
29930 |
1075
995
915
835
755 |
11 |
940 |
740 |
17560
19840
22120
24400
26680 |
855
785
725
665
605 |
7.5 |
901 |
660 |
15680
17710
19740
21770
23800 |
680
630
580
530
480 |
5.5 |
904 |
12C (E) |
1040 |
42680
49210
55740
62270
68800 |
2430
2250
2070
1890
1720 |
55 |
1629 |
|
机号 |
转速
(rpm) |
风量
(m3/h) |
全压
(Pa) |
功率
(kW) |
重量 (Kg) |
10C (E) |
1300 |
38500
44750
51000
57250
63500 |
2660
2450
2240
2030
1820 |
55 |
1104 |
1170 |
34600
40225
45850
51475
57100 |
2160
1990
1820
1650
1480 |
37 |
1090 |
940 |
27850
32360
36870
41380
45890 |
1390
1280
1170
1060
950 |
18.5 |
964 |
830 |
24550
28540
32530
36520
40510 |
1080
995
910
825
740 |
15 |
943 |
740 |
21900
25450
29000
32550
36100 |
860
790
720
650
590 |
11 |
901 |
660 |
19500
22675
25850
29025
32200 |
680
630
580
530
475 |
7.05 |
904 |
580 |
17160
25515
22730
19945
28300 |
530
490
450
410
380 |
5.5 |
893 |
12C (E) |
1040 |
53300
61925
70550
79180
87800 |
2440
2250
2060
1870
1680 |
75 |
1630 |
|
| 4-72型性能参数表-续表 |
4-79型性能参数表-续表 |
机号 |
转速
(rpm) |
风量
(m3/h) |
全压
(Pa) |
功率
(kW) |
重量 (Kg) |
12C (E) |
940 |
38570
45570
48570
53570
58570 |
1990
1840
1690
1540
1390 |
37 |
1485 |
830 |
34060
38475
42890
44305
51720 |
1550
1435
1320
1205
1090 |
22 |
1450 |
740 |
30370
34300
38240
42170
46110 |
1230
1140
1050
960
870 |
18.5 |
1422 |
660 |
27080
30690
34100
37610
41125 |
980
910
840
770
700 |
11 |
1350 |
580 |
23800
26885
29970
33050
36140 |
755
700
645
590
535 |
7.5 |
1320 |
520 |
21340
24110
26880
29650
32420 |
610
565
520
475
430 |
5.5 |
1286 |
|
机号 |
转速
(rpm) |
风量
(m3/h) |
全压
(Pa) |
功率
(kW) |
重量 (Kg) |
12C (E) |
940 |
48200
62400
69600
74600
79300 |
1951
1794
1676
1490
1333 |
55 |
1486 |
830 |
42500
55200
61500
65900
70100 |
1529
1402
1304
1167
1039 |
37 |
1452 |
740 |
37900
49200
54800
58700
62400 |
1216
1108
1039
931
823 |
22 |
1422 |
660 |
33800
43800
48900
52400
55700 |
961
882
823
735
657 |
18.5 |
1349 |
580 |
29700
38500
43000
46100
48900 |
755
686
637
568
509 |
11 |
1321 |
520 |
26650
34500
38550
41300
43900 |
603
549
509
451
402 |
7.5 |
1286 |
|
| 4-72型性能参数表-续表 |
4-79型性能参数表-续表 |
机号 |
转速
(rpm) |
风量
(m3/h) |
全压
(Pa) |
功率
(kW) |
重量 (Kg) |
14E |
830 |
57900
66200
74500
82800
91140 |
2070
1813
1573
1323
1083 |
55 |
2660 |
740 |
51650
59050
66450
73850
81250 |
1650
1450
1250
1050
860 |
37 |
2470 |
660 |
46030
52640
59250
65860
72470 |
1308
1150
955
840
685 |
30 |
2285 |
580 |
40480
46280
52080
57880
63680 |
1010
890
770
650
530 |
18.5 |
2285 |
520 |
36270
41480
46680
51880
57100 |
425
522
618
715
812 |
15 |
2260 |
470 |
32800
37500
42200
46900
51600 |
660
580
500
420
340 |
11 |
2212 |
420 |
29298
33500
37700
41900
46118 |
277
340
405
466
530 |
7.5 |
2184 |
16E |
830 |
86440
98840
111240
136040 |
2700
2380
2060
1740
1420 |
90 |
3554 |
740 |
77040
88100
99160
110220
121290 |
1124
1380
1636
1892
2148 |
75 |
3464 |
660 |
68720
78590
88190
97830
108180 |
1709
1510
1301
1098
894 |
55 |
3069 |
580 |
60390
69060
77730
86400
95070 |
1320
1165
1010
850
690 |
37 |
2882 |
520 |
54145
61920
69690
77460
85230 |
1060
935
806
680
555 |
22 |
2724 |
470 |
48940
55965
62990
70010
77035 |
867
760
660
657
454 |
18.5 |
2694 |
420 |
43720
5000
56280
62550
68840 |
692
620
535
444
362 |
15 |
2669 |
|
机号 |
转速
(rpm) |
风量
(m3/h) |
全压
(Pa) |
功率
(kW) |
重量 (Kg) |
14E |
830 |
67400
78300
89200
100100
111000 |
2130
1960
1790
1620
1450 |
75 |
1629 |
740 |
60100
69800
79500
89200
98900 |
1600
1486
1375
1262
1150 |
55 |
1486 |
660 |
55300
64200
73100
82000
90900 |
1430
1315
1200
1085
970 |
37 |
1452 |
580 |
47100
54700
62300
69900
77500 |
1040
955
870
785
700 |
22 |
1422 |
520 |
42200
49025
55850
62675
69500 |
830
760
694
627
560 |
18.5 |
1349 |
460 |
37300
43350
49400
55450
61500 |
650
598
545
492
440 |
15 |
1321 |
370 |
30000
34850
39700
44550
49400 |
420
385
350
315 280 |
7.5 |
1276 |
16E |
740 |
89700
104225
118750
133275
147800 |
2220
2042
1865
1687
1510 |
90 |
2987 |
660 |
80100
93050
10600
118950
131900 |
1760
1620
1480
1340
1200 |
75 |
2725 |
580 |
70300
81700
93100
104500
115900 |
1360
1250
1140
1030
920 |
55 |
2662 |
470 |
56900
66175
75450
84725
94000 |
890
820
750
680
610 |
30 |
2474 |
420 |
50800
59100
67400
75700
845000 |
710
655
600
545
490 |
18.5 |
2422 |
330 |
40000
46525
53050
59575
66100 |
330
305
280
255
230 |
11 |
2340 |
/ |
/ |
/ |
/ |
/ |
/ |
|
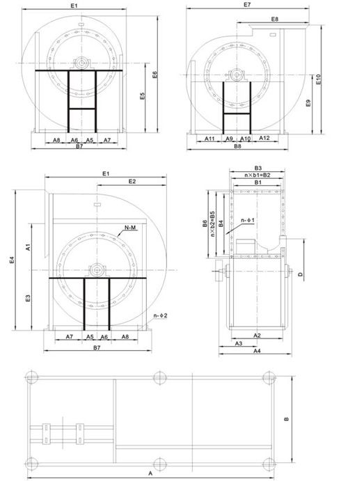
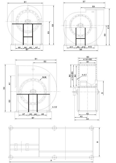
六、4-72、4-79系列风机外形尺寸
(一)、4-72、4-79系列 2.8A -6A 离心风机外形图
(二)、4-72、4-79系列 6C -12C离心风机外形图
(三)、4-72、4-79系列 6C -12C 离心风机外形图
(四)、4-72系列 2.8A -6A离心风机外形尺寸表
机号 |
进风口尺寸 |
出风口尺寸 |
D1 |
D2 |
D3 |
n-Φ1 |
B1 |
B2 |
B3 |
B4 |
B5 |
B6 |
n1×d1 |
n2×d2 |
n-Φ2 |
2.8A |
Φ280 |
Φ305 |
Φ330 |
8-Φ8.5 |
202 |
234 |
262 |
228 |
258 |
288 |
3×78 |
3×96 |
12-Φ10 |
3.2A |
Φ320 |
Φ350 |
Φ380 |
10-Φ9.5 |
230 |
258 |
290 |
260 |
292 |
320 |
3×86 |
4×73 |
14-Φ10 |
3.6A |
Φ360 |
Φ390 |
Φ420 |
10-Φ9.5 |
258 |
300 |
338 |
292 |
332 |
372 |
4×75 |
4×86 |
16-Φ10 |
4A |
Φ400 |
Φ430 |
Φ460 |
10-Φ9.5 |
286 |
324 |
366 |
324 |
364 |
404 |
4×81 |
4×91 |
16-Φ10 |
4.5A |
Φ450 |
Φ480 |
Φ510 |
10-Φ9.5 |
315 |
356 |
395 |
360 |
400 |
440 |
4×89 |
5×80 |
18-Φ10 |
5A |
Φ500 |
Φ540 |
Φ580 |
12-Φ9.5 |
350 |
400 |
430 |
400 |
450 |
480 |
4×100 |
5×90 |
18-Φ10 |
6A |
Φ600 |
Φ640 |
Φ680 |
12-Φ8.5 |
426 |
475 |
526 |
484 |
534 |
584 |
5×95 |
6×89 |
22-Φ10 |
(五)、4-72系列 6C -12C 离心风机外形尺寸表
机号 |
进风口尺寸 |
出风口尺寸 |
H1 |
H2 |
H3 |
D1 |
D2 |
B1 |
B2 |
B3 |
B4 |
B5 |
B6 |
n-Φ1 |
n×b1 |
n×b2 |
6C |
Φ600 |
Φ640 |
426 |
475 |
526 |
484 |
534 |
584 |
22-Φ12.5 |
6×89 |
5×95 |
830 |
680 |
580 |
7C |
Φ700 |
Φ740 |
498 |
550 |
598 |
566 |
618 |
666 |
22-Φ12.5 |
6×103 |
5×110 |
920 |
775 |
665 |
8C |
Φ800 |
Φ840 |
560 |
610 |
660 |
640 |
690 |
740 |
22-Φ12.5 |
6×115 |
5×122 |
1040 |
880 |
760 |
10C |
Φ1000 |
Φ1050 |
710 |
762 |
810 |
808 |
858 |
908 |
24-Φ12.5 |
6×143 |
6×127 |
1300 |
1100 |
950 |
12C |
Φ1200 |
Φ1250 |
850 |
910 |
970 |
968 |
1032 |
1088 |
30-Φ12.5 |
8×129 |
7×130 |
1500 |
1300 |
1100 |
机号 |
B7 |
B8 |
A1 |
A2 |
A3 |
A4 |
E1 |
E2 |
E3 |
E4 |
E5 |
E6 |
E7 |
E8 |
M1 |
L |
W |
6C |
850 |
1700 |
423 |
216 |
476 |
950 |
1032 |
452 |
750 |
1241 |
715 |
1206 |
600 |
1051 |
M12 |
1860 |
1080 |
7C |
895 |
1790 |
613 |
253 |
512 |
1138 |
1193 |
516 |
840 |
1412 |
826 |
1439 |
1226 |
1426 |
M12 |
1950 |
1200 |
8C |
1000 |
2120 |
562 |
283 |
610 |
1201 |
1578 |
570 |
960 |
1608 |
932 |
1578 |
1378 |
1612 |
M12 |
2300 |
1270 |
10C |
1250 |
2500 |
702 |
358 |
780 |
1385 |
1674 |
712 |
1200 |
2012 |
1156 |
1968 |
1712 |
2006 |
M12 |
2700 |
1570 |
12C |
1600 |
3200 |
842 |
428 |
920 |
1516 |
2004 |
844 |
1400 |
2372 |
1386 |
2358 |
2052 |
2386 |
M12 |
3400 |
1700 |
(六)、4-72系列14E-16E离心风机外形尺寸表
机 号 |
进风口尺寸 |
出 风 口 尺 寸 |
|
D |
n-M |
B1 |
B2 |
B3 |
B4 |
B5 |
B6 |
n-Ф1 |
n×b1 |
n×b2 |
A1 |
A2 |
14E |
Ф1470 |
24-M12 |
996 |
1062 |
1122 |
1118 |
1180 |
1244 |
38-Ф14 |
9×118 |
10×118 |
986 |
1076 |
16E |
Ф1670 |
24-M12 |
1130 |
1200 |
1250 |
1290 |
1353 |
1410 |
42-Ф14 |
10×120 |
11×123 |
1134 |
1230 |
机 号 |
安装及外形尺寸图 |
A3 |
A4 |
A5 |
A6 |
A7 |
A8 |
A9 |
A10 |
A11 |
A12 |
B7 |
B8 |
14E |
777 |
1404 |
270 |
270 |
550 |
550 |
280 |
280 |
560 |
560 |
1960 |
2000 |
16E |
986 |
1740 |
310 |
310 |
620 |
620 |
375 |
375 |
600 |
600 |
2350 |
2400 |
机 号 |
安装及外形尺寸图 |
E1 |
E2 |
E3 |
E4 |
E5 |
E6 |
E7 |
E8 |
E9 |
E10 |
n-Ф |
A |
B |
14E |
2428 |
1343 |
1160 |
2770 |
1645 |
2778 |
2744 |
1610 |
1380 |
2465 |
8-Ф18 |
4000 |
1670 |
16E |
2670 |
1549 |
1350 |
3192 |
1850 |
3149 |
3141 |
1842 |
1560 |
2681 |
8-Ф12 |
4950 |
1980 |
(七)、4-79系列 3A -6A 离心风机外形尺寸表
机号 |
进风口尺寸 |
出风口尺寸 |
D1 |
D2 |
D3 |
n-Φ1 |
B1 |
B2 |
B3 |
B4 |
B5 |
B6 |
n1×d1 |
n2×d2 |
n-Φ2 |
3A |
Φ300 |
Φ330 |
Φ360 |
8-Φ8.5 |
216 |
246 |
276 |
244 |
276 |
304 |
3×82 |
3×92 |
12-Φ10 |
3.5A |
Φ350 |
Φ380 |
Φ410 |
10-Φ8.5 |
251 |
292 |
331 |
284 |
324 |
364 |
4×73 |
4×81 |
16-Φ10 |
4A |
Φ400 |
Φ430 |
Φ460 |
10-Φ8.5 |
286 |
324 |
366 |
324 |
364 |
404 |
4×81 |
4×91 |
16-Φ10 |
4.5A |
450 |
480 |
510 |
10-Φ8.5 |
315 |
356 |
395 |
360 |
400 |
440 |
4×89 |
5×80 |
18-Φ10 |
5A |
Φ500 |
Φ540 |
Φ580 |
12-Φ8.5 |
350 |
400 |
430 |
400 |
450 |
480 |
4×100 |
5×90 |
18-Φ10 |
6A |
600 |
640 |
680 |
12-Φ8.5 |
426 |
475 |
526 |
484 |
534 |
584 |
5×95 |
6×89 |
22-Φ10 |
机号 |
电机型号 |
安 装 尺 寸 |
B7 |
B8 |
A1 |
A2 |
A3 |
A4 |
A5 |
A6 |
A7 |
A8 |
A9 |
A10 |
A11 |
3A |
Y802-2 |
256 |
140 |
209 |
145 |
125 |
183 |
230 |
125 |
170 |
170 |
125 |
230 |
183 |
Y701-4 |
3.5A |
Y901-2 |
291 |
160 |
249 |
173 |
140 |
217 |
217 |
140 |
200 |
200 |
140 |
217 |
217 |
Y801-4 |
150 |
4A |
Y132S-2 |
336 |
230 |
282 |
199 |
220 |
230 |
230 |
220 |
230 |
230 |
220 |
230 |
230 |
Y802-4 |
150 |
130 |
130 |
130 |
4.5A |
Y132S-2 |
365 |
240 |
319 |
225 |
230 |
240 |
280 |
230 |
290 |
290 |
230 |
280 |
240 |
Y90S-4 |
150 |
140 |
140 |
140 |
5A |
Y 160M -4 |
400 |
355 |
353 |
251 |
270 |
293 |
293 |
270 |
270 |
270 |
270 |
293 |
293 |
Y 90L -4 |
180 |
150 |
150 |
150 |
6A |
Y 112M -4 |
470 |
185 |
423 |
291 |
195 |
375 |
405 |
195 |
395 |
335 |
195 |
405 |
375 |
Y 100L -6 |
178 |
155 |
155 |
245 |
机号 |
电机型号 |
安 装 尺 寸 |
E1 |
E2 |
E3 |
E4 |
E5 |
E6 |
E7 |
E8 |
E9 |
E10 |
L |
n-Φ |
3A |
Y802-2 |
527 |
294 |
380 |
628 |
611 |
249 |
310 |
544 |
260 |
623 |
498 |
6-Φ10.5 |
Y701-4 |
3.5A |
Y901-2 |
612 |
344 |
450 |
741 |
721 |
291 |
345 |
638 |
300 |
731 |
583 |
6-Φ12.5 |
Y801-4 |
558 |
4A |
Y132S-2 |
700 |
390 |
480 |
810 |
814 |
330 |
420 |
730 |
350 |
834 |
763 |
6-Φ12.5 |
Y802-4 |
602 |
4.5A |
Y132S-2 |
778 |
437 |
560 |
929 |
908 |
369 |
460 |
801 |
390 |
929 |
799 |
6-Φ12.5 |
Y90S-4 |
642 |
5A |
Y 160M -4 |
857 |
484 |
610 |
1019 |
1001 |
409 |
500 |
874 |
415 |
1008 |
953 |
6-Φ14.5 |
Y 90L -4 |
746 |
6A |
Y 112M -4 |
1032 |
581 |
750 |
1241 |
1206 |
491 |
600 |
1051 |
500 |
1215 |
844 |
6-Φ14.5 |
Y 100L -6 |
824 |
(八)、4-79系列 7C -12C离心风机外形尺寸表
机号 |
进风口尺寸 |
出风口尺寸 |
H1 |
H2 |
H3 |
D1 |
D2 |
B1 |
B2 |
B3 |
B4 |
B5 |
B6 |
n-Φ2 |
n1×d1 |
n2×d2 |
7C |
Φ700 |
Φ740 |
498 |
550 |
598 |
566 |
618 |
666 |
22-Φ12.5 |
6×103 |
5×110 |
940 |
810 |
700 |
8C |
Φ800 |
Φ840 |
560 |
610 |
660 |
640 |
690 |
740 |
22-Φ12.5 |
5×122 |
6×115 |
1040 |
880 |
760 |
10C |
Φ1000 |
Φ1050 |
710 |
, 762 |
810 |
808 |
858 |
908 |
24-Φ12.5 |
6×127 |
6×143 |
1300 |
1100 |
950 |
12C |
Φ1200 |
Φ1250 |
850 |
910 |
970 |
968 |
1032 |
1088 |
30-Φ12.5 |
7×130 |
8×129 |
1500 |
1300 |
1100 |
机号 |
B7 |
B8 |
A1 |
A2 |
A3 |
A4 |
E1 |
E2 |
E3 |
E4 |
E5 |
E6 |
E7 |
E8 |
M1 |
L |
W |
7C |
991 |
1058 |
493 |
296 |
548 |
114 |
1193 |
677 |
840 |
1412 |
1439 |
826 |
710 |
1266 |
M12 |
2500 |
1120 |
8C |
1060 |
2120 |
562 |
332 |
610 |
125 |
1578 |
168 |
960 |
1608 |
1578 |
932 |
800 |
1378 |
M12 |
2600 |
1200 |
10C |
1250 |
2500 |
702 |
405 |
780 |
160 |
1674 |
962 |
1200 |
2012 |
1968 |
1156 |
1000 |
1712 |
M12 |
3000 |
1500 |
12C |
1600 |
3200 |
842 |
475 |
920 |
200 |
2004 |
1152 |
1400 |
2372 |
2358 |
1386 |
1200 |
2052 |
M12 |
3200 |
1600 |
(九)、4-79系列14E-16E离心风机外形尺寸表
机 号 |
进风口尺寸 |
出 风 口 尺 寸 |
|
D |
n-M |
B1 |
B2 |
B3 |
B4 |
B5 |
B6 |
n-Ф1 |
n×b1 |
n×b2 |
A1 |
A2 |
14E |
Ф1470 |
24-M12 |
996 |
1062 |
1122 |
1118 |
1180 |
1244 |
38-Ф14 |
9×118 |
10×118 |
986 |
1076 |
16E |
Ф1670 |
24-M12 |
1130 |
1200 |
1250 |
1290 |
1353 |
1410 |
42-Ф14 |
10×120 |
11×123 |
1134 |
1230 |
机 号 |
安装及外形尺寸图 |
A3 |
A4 |
A5 |
A6 |
A7 |
A8 |
A9 |
A10 |
A11 |
A12 |
B7 |
B8 |
14E |
777 |
1404 |
270 |
270 |
550 |
550 |
280 |
280 |
560 |
560 |
1960 |
2000 |
16E |
986 |
1740 |
310 |
310 |
620 |
620 |
375 |
375 |
600 |
600 |
2350 |
2400 |
机 号 |
安装及外形尺寸图 |
E1 |
E2 |
E3 |
E4 |
E5 |
E6 |
E7 |
E8 |
E9 |
E10 |
n-Ф |
A |
B |
14E |
2428 |
1343 |
1160 |
2770 |
1645 |
2778 |
2744 |
1610 |
1380 |
2465 |
8-Ф18 |
4000 |
1670 |
16E |
2670 |
1549 |
1350 |
3192 |
1850 |
3149 |
3141 |
1842 |
1560 |
2681 |
8-Ф12 |
4950 |
1980 |